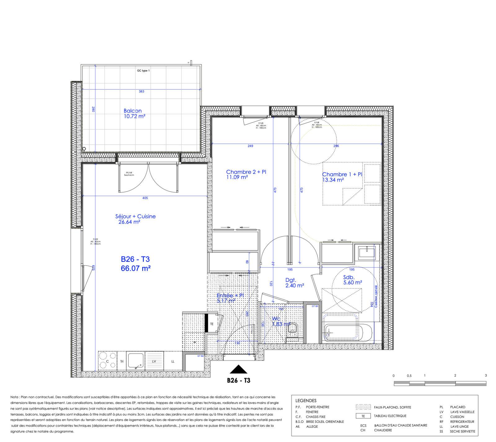
Sciez, proche des commodités, dans une résidence en cours de construction, appartement de type 3 (lot B26), comprenant : entrée, séjour / cuisine donnant sur un balcon de 10,72m2, deux chambres, une salle de bains et des toilettes séparées. Une cave et deux places de stationnement sont comprises avec ce bien.
Une résidence conviviale et champêtre dans un parc paysagé offrant espaces de détente et jardin potager partagé.
Photos non contractuelles.
Copropriété de 377 lots dont 100 lots d'habitation répartis en quatre bâtiments de maximum quatre étages.
D'autres lots disponibles, n'hésitez pas à contacter l'agence pour toute demande d'information.
Annonce rédigée par un agent commercial en E.I.; RSAC 824 481 287 Thonon les Bains N° ADC 7401 2024 000 000 200
Les informations sur les risques auxquels ce bien est exposé sont disponibles sur le site Géorisques
 
                 
                                         
                                         
                                         
                                     
                                     
                                     
                                 
                                 
                                 
             
                                                 
                                                