Page suivante
Page précédente
Douvaine (74140)

Maison 4 pièce(s) 3 chambre(s) 91.3 m²

1
261 m²
1
Nous consulter
Réf lot1LO1910

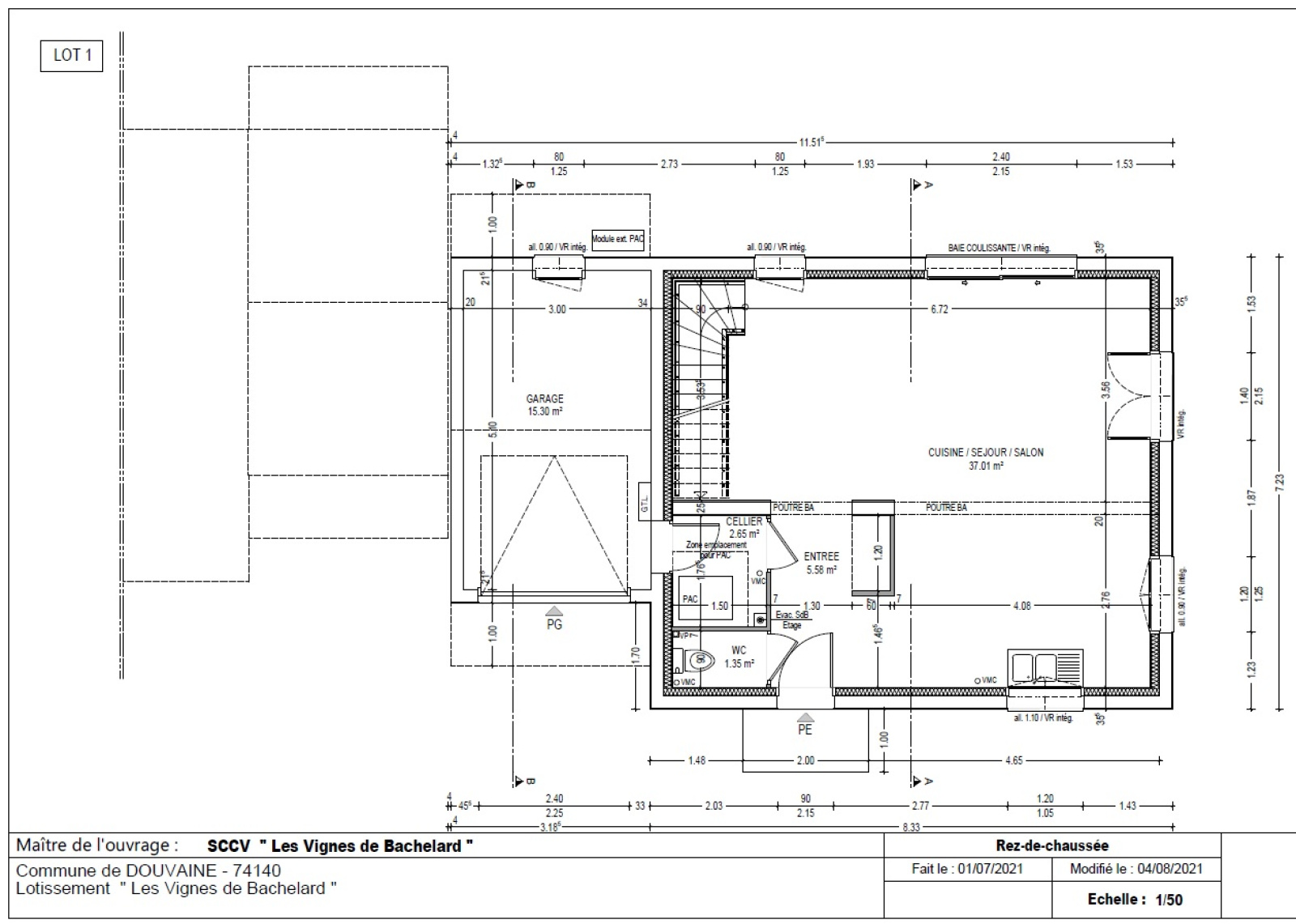
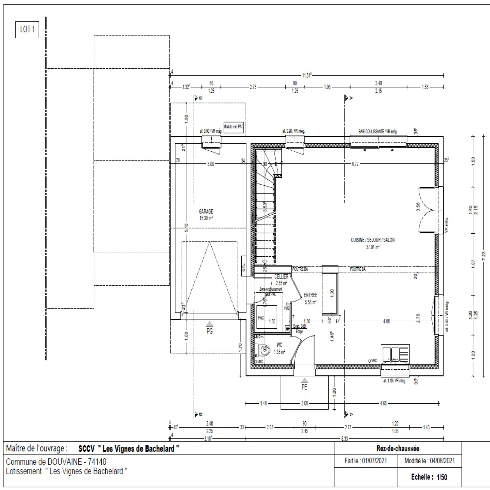
Projet de construction de maison jumelée par le garage.

Seulement 4 villas disponibles,

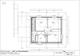
Lot 1 : villa avec 3 chambres de 91.30 m² édifiée sur 261 m² de terrain, exposition Sud Ouest. Vente en VEFA, frais de notaires réduits.

Dossier complet sur demande.

Bilan énergétique

Diagnostics énergetiques
A propos de ce bien Caractéristiques de ce bien
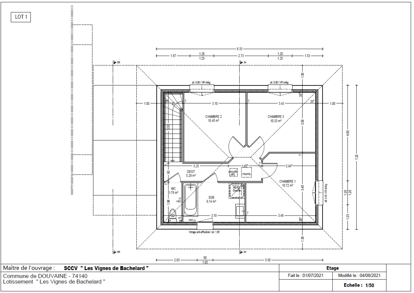
  • Surface 91,30 m²
  • terrain 261 m²
  • séjour 37,01 m²
  • 3 chambre(s)
  • 1 salle(s) d'eau
  • construit en 2023
  • cuisine américaine
  • Chauffage individuel : au sol (pompe à chaleur)
  • 1 garage(s)
  • 2 parking(s)
  • exposition Sud-Ouest
  • 1 côté(s) mitoyen(s)
  • terrasse

Autour du bien

Découvrez le quartier

Simulation

Calcul des mensualités
* Champs obligatoires