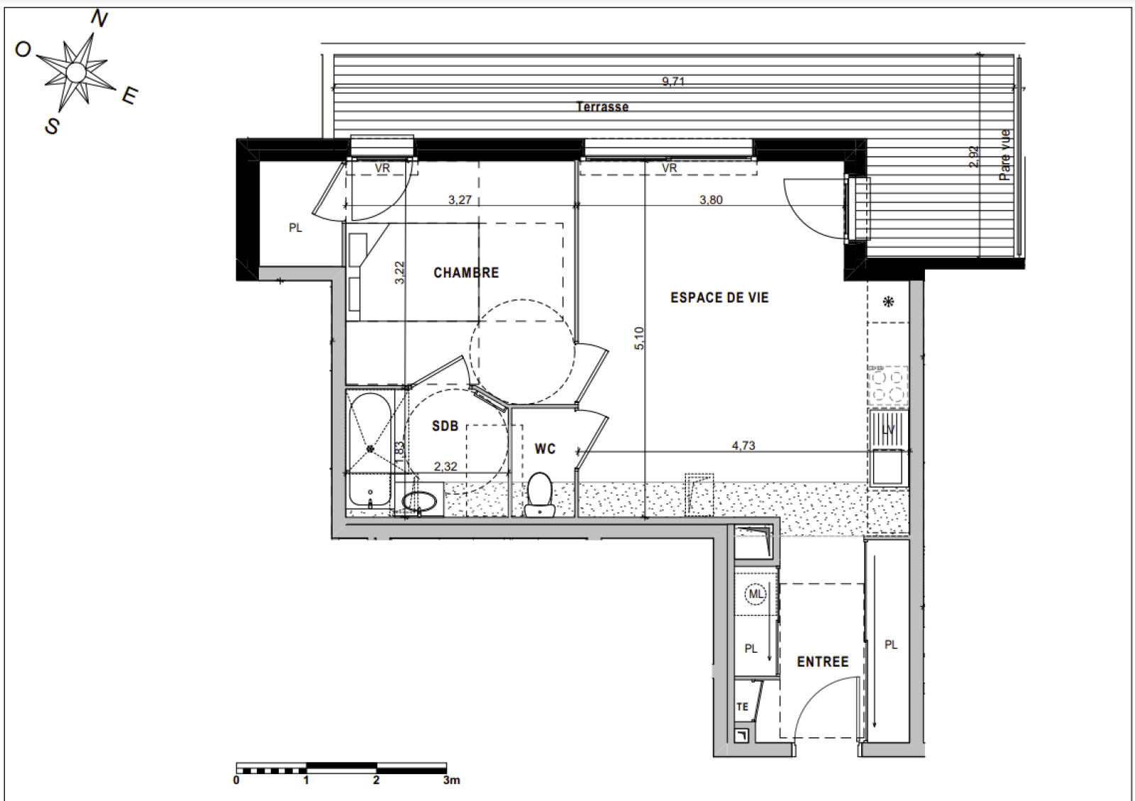
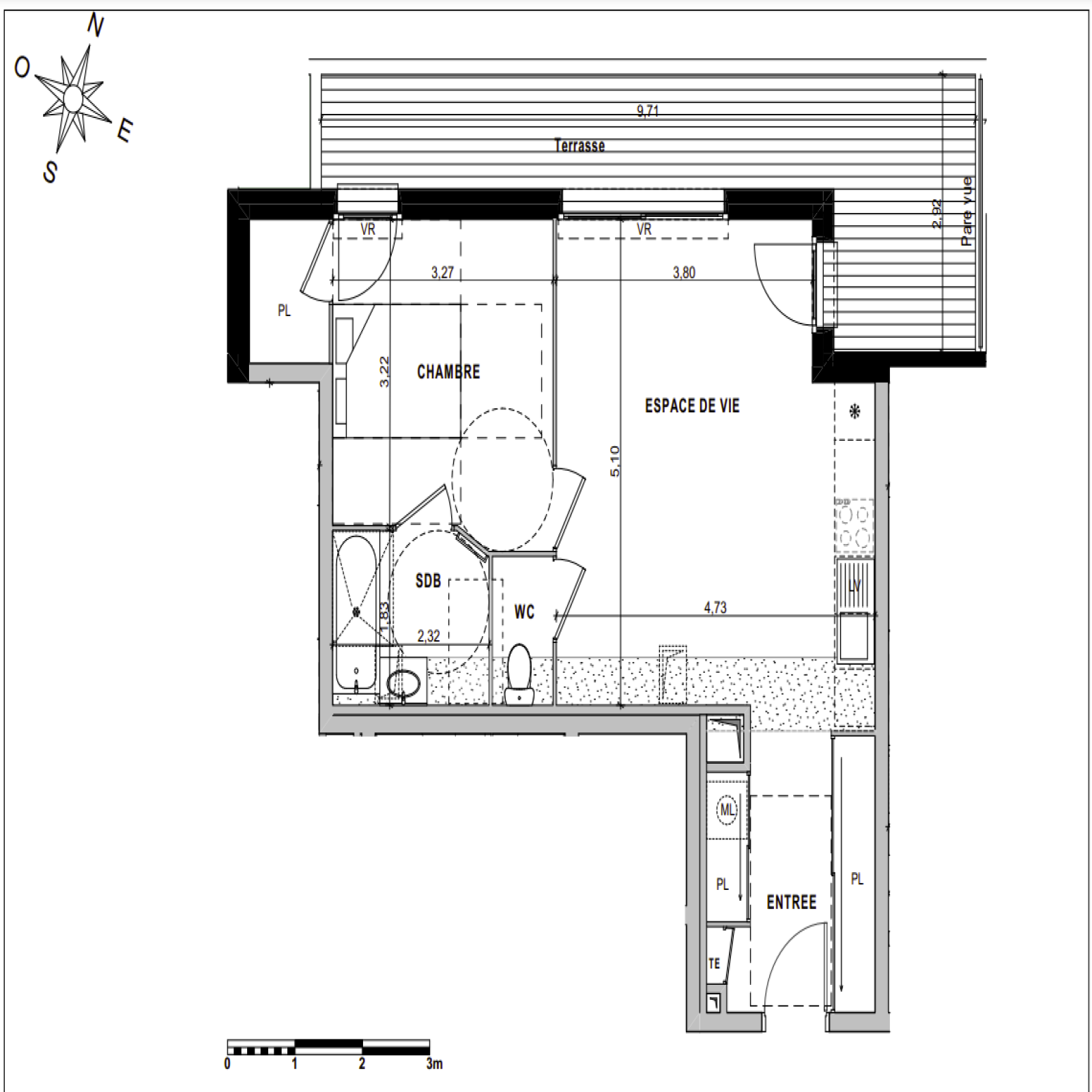
À vendre : Appartement moderne et confortable à Sciez
Découvrez ce superbe appartement situé au premier étage d'un immeuble avec ascenseur.
Caractéristiques de l'appartement :
Séjour avec un espace cuisine totalisant 23,02 m²,une chambre confortable de 12,66m², un WC et une salle de bains 
deux places de parking exterieur.
À l'extérieur :
Profitez d'une magnifique terrasse de plus de 15,26 m².
Autres prestations:
Cave, local à vélos et jardin commun offrant un cadre de vie agréable et pratique.
À proximité :
Commodités à portée de main: commerces et crèche situés au pied de l'immeuble. Accès facile aux activités de plein air grâce à la proximité du lac Léman et du port de Sciez.
Livraison prévue le 2ème trimestre 2027.
Les informations sur les risques auxquels ce bien est exposé sont disponibles sur le site Géorisques
 
                 
                                         
                                         
                                     
                                     
                                 
                                 
             
                                                 
                                                